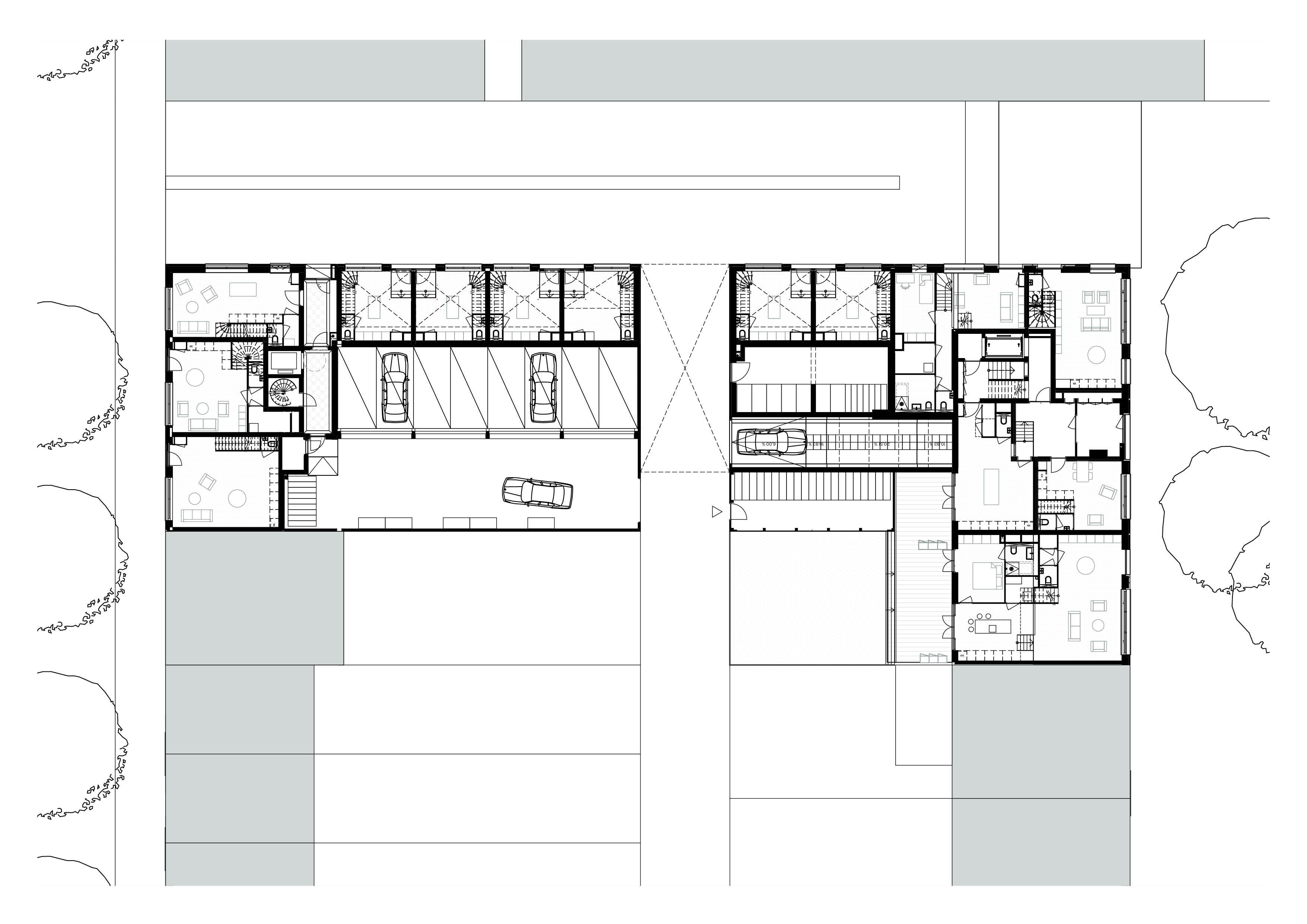
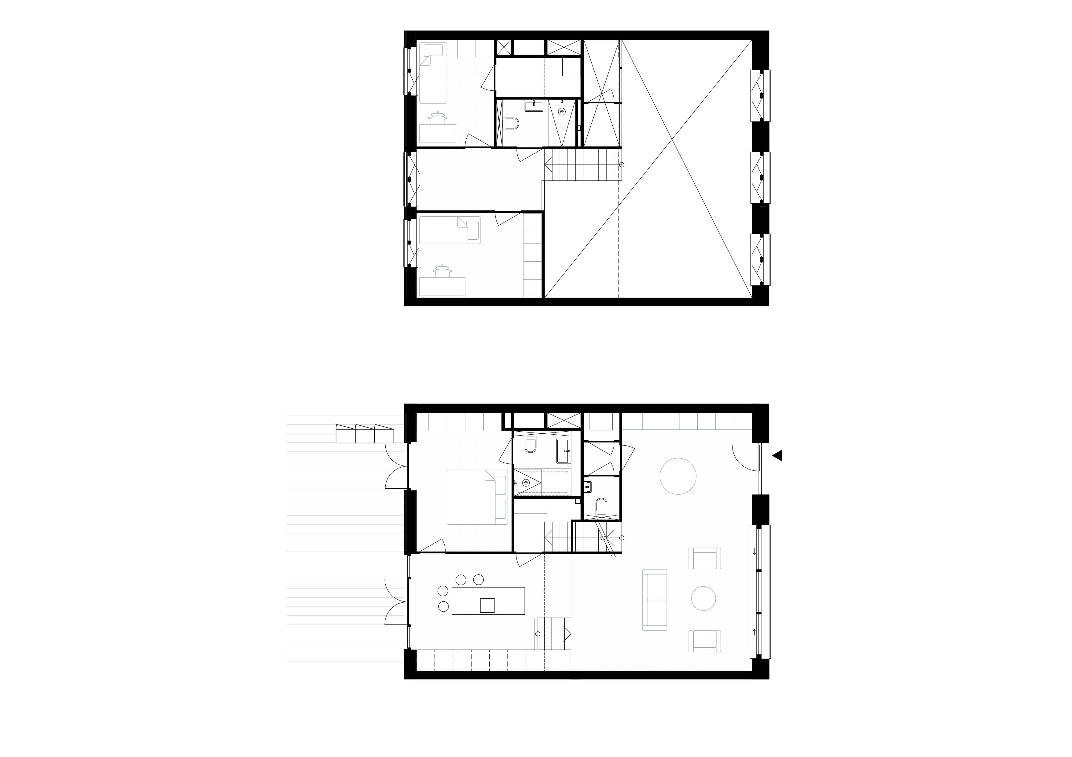
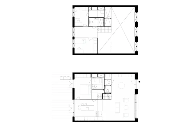
Het ontwerp kwam tot stand via workshops en individuele sessies, waarbij bewoners hun dagelijkse routines en woonvoorkeuren inbrachten via de "ideale dag"-methode. Naast tekeningen en plattegronden maakten foto's, verhalen en referenties deel uit van het programma van eisen. Dit resulteerde in meer dan tien woningtypologieën - waaronder stadswoningen, maisonnettes en split-level appartementen - met een oppervlakte van 48 tot 150 vierkante meter. Elke woning is individueel ontworpen binnen een samenhangend gebouw van 5000 vierkante meter.
Architectonisch vormt het gebouw een stedelijk blok dat de kop markeert van een groter ensemble op Centrumeiland. De gevel reageert op de drie omliggende straten: aan het Srefdensiplein sluit de gevel aan op de schaal van het plein en de zelfbouwkavels, aan de Christiaan Paul Flustraat leest het gebouw als een reeks stadswoning-gevels, en aan de Muiderlaan presenteert het zich als een stedelijk baken met horizontale geleding. De gevels zijn uitgevoerd in rood metselwerk met wisselende metselverbanden. Prefab betonelementen accentueren de entrees, de hoek en een doorgang die het blok doorsnijdt.
Het gebouw is energieneutraal (EPC -0,2) en regenbestendig. Een gemeenschappelijke ruimte en een collectieve tuin versterken de sociale ambitie van het project. Samen IJzersterk laat zien hoe co-design leidt tot een gevarieerd woningprogramma dat aansluit op de wensen van bewoners, zonder de samenhang van het gebouw als geheel te verliezen.


































